
Adam Cardenas (MArch ‘25) wins first place in 2025 Lyceum Competition
Sep 17, 2025
UCLA Architecture and Urban Design’s Adam Cardenas (MArch ‘25) has won first place in the 2025 Lyceum Competition, an annual traveling fellowship awarded to top architecture students from around the world.
Cardenas’s first-place prize awards him a three-month travel fellowship. From December 2025 through February 2026, he will travel to Mexico, Guatemala, El Salvador, Honduras, Costa Rica, Panama, Ecuador, Peru, Chile, and Colombia before concluding in Barbados. Cardenas was advised by Claus Benjamin Freyinger (MArch ‘05), Lecturer at AUD.
This year’s Lyceum Competition explores "sustainable building design in the Caribbean through the lens of its indigenous culinary arts and culture," according to the competition brief. Students were asked to reimagine two reclaimed buildings situated on the beachfront in Bridgetown, Barbados, transforming them into vibrant hubs for culinary innovation and community gathering.
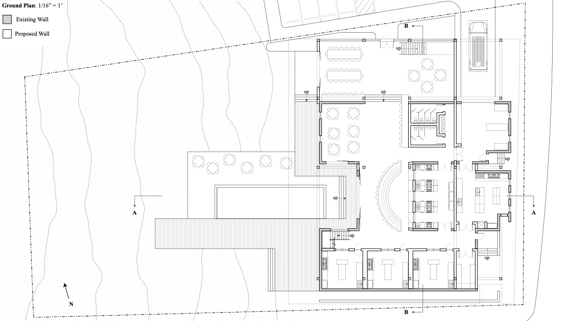
Cardenas’s proposal, "Container for Community," offers a Bridgetown food hub which, he observes, "is rooted in sustainability within adaptive reuse and place making." Alongside a restaurant and its commercial kitchen are two other food spaces: a community research kitchen, as well as a series of individual kitchens for local chefs to hone their work.


Cardenas' riff on the local shed typology is used to surround the two reclaimed buildings, creating a unified volume that opens to the beach and provides a mixture of indoor and outdoor architectural conditions. A monochromatic, light-metal structure within seeks to retrofit and secure the existing buildings, while also supporting new exterior walls and roof. By wrapping the existing buildings on site, Cardenas sought to preserve the character while also changing the reading of the site’s existing conditions.




These moves are intended to establish “Container for Community” as a Barbados landmark. The metal volume, visible by land and ocean, faces the beach and acts as a “welcome portal” for beach goers and passerbys. Cardenas shaped the vibrance and character of the metal addition, with its unique cadence, in order to complement and inspire the culinary explorations within.
For his final AUD project, Cardenas took on another innovative reinvention of the restaurant typology: "500 year restaurant," completed for Hitoshi Abe's 2024-2025 research studio "Place of Shared Experience," offers a restaurant that deconstructs the dining experience. By rethinking the restaurant as a ceremonial dining experience, Cardenas highlights and designs for the ceremony of cooking with fire. Along with the guest experience, the host experience is also considered equally in his proposal. Cardenas combines those realities to create an immersive environment that triggers the six senses through experiential displays and choreography.
Scenes from Cardenas's "500 year restaurant":



Carendas graduated from UCLA AUD this past June with distinction. Earlier this year, he was one of three AUD students–and one of 100 students nationwide–named to the Metropolis Future100’s Master of Architecture list.
Related Faculty |
Benjamin Freyinger |